Dự án khu đô thị Mỹ Độ Vista City TP Bắc Giang
KHU ĐÔ THỊ MỚI MỸ ĐỘ VISTA CITY – TP BẮC GIANG
Khu Dân Cư Mỹ Độ nằm trong khu vực có tốc độ phát triển mạnh mẽ về kinh tế và xã hội, mang lại sự kết nối với đầy đủ các tiện ích về an sinh xã hội, các tiện ích cộng đồng của thành phố Bắc Giang. Hạnh phúc an cư – Đầu tư bền vững – Sự lựa chọn số 1 của cư dân thông thái hiện nay.
Anh/chị quan tâm xin vui lòng liên hệ: 0974696767 để được cập nhật.
Tổng quan dự án Mỹ Độ Vista City TP Bắc Giang
KĐT Mydo Vista City là khu đô thị hoàn chỉnh đầu tiên, mang trong mình sứ mệnh đánh thức vùng đất phía bên kia sông Thương. Theo quy hoạch, KĐT Mydo Vista City sẽ có một liên kết vùng hoàn hảo với công viên, chung cư cao tầng, bệnh viện, trường học, liền kề với khu vực Vingroup đang tiến hành nghiên cứu
- Tên dự án: Khu đô thị mới Mỹ Độ Vista City Bắc Giang
- Vị trí: Phường Mỹ Độ, thành phố Bắc Giang
- Chủ đầu tư: Công ty cổ phần Đầu tư và Thương Mại Hà Nội
- Tổng diện tích: 10,18ha
- Quy mô dân số: người
- Mật độ xây dựng đất ở: 37,81%
- Loại hình phát triển: nhà phố liền kề
- Nhà phố liền kề: 381 lô diện tích từ 71m2 – 151,67m2
- Mật độ vườn hoa, cây xanh, cảnh quan, hệ thống giao thông: 62,19%

Vị trí dự án Mỹ Độ Vista City TP Bắc Giang
Được ví như “Trái tim vàng” của phường Mỹ Độ, là dự án có vị trí đẹp nhất khi hội tụ đầy đủ ba yếu tố “nhất cận thị, nhị cận giang, tam cận lộ”. Khu đô thị mới Mỹ Độ sở hữu vị trí đắc địa đã tạo nên lợi thế “vượng lộc đắc tài” cho dự án. Nơi đây là trung tâm kết nối của các xã và các trục đường trong khu vực.
- Vị trí đắc địa, dễ dàng kết nối với trung tâm tỉnh Lạng Sơn, Bắc Ninh, Hà Nội
- Nằm tiếp giáp với khu chợ truyền thống và hệ thống trường cấp 1, cấp2, mầm non tạo nên một không gian sống vô cùng tiện ích
- Phía Bắc tiếp giáp đường Quốc lộ 1A cũ , thuận tiện kết nối sang thành phố Bắc Ninh.
- Phía Nam là cây cầu Á Lữ kết nối sang trung tâm thành phố Đi ra khu Công nghiệp Việt Hàn chỉ mất 10p đi xe, thuận tiện cho việc kinh doanh dịch vụ ăn uống, vui chơi, giải trí, nhà nghỉ, phòng trọ….
- Phía Tây cách Bệnh viện Nội Tiết , Bệnh viện U Bướu và Bến xe Thành phố chỉ 5 phút đi bộ
- Phía Đông tiếp giáp nhà máy, nhà xưởng hiện trạng



Tiện ích dự án Mỹ Độ Vista City TP Bắc Giang
Dự án Khu đô thị mới Mỹ Độ Vista City Bắc Giang được thiết kế với cảm hứng từ hình ảnh một đô thị đang phát triển sẽ mang đến cho cư dân những trải nghiệm tuyệt vời nhất về một môi trường sống hoàn hảo. Không gian của khu đô thị tập trung nhiều khu công viên, công trình nhà ở sẽ có mật độ xây dựng tương đối thấp. Hệ thống giao thông, hệ thống điện, cấp và thoát nước, hệ thống thông tin liên lạc, vệ sinh môi trường, tổ chức không gian hài hòa.
- Khu sinh hoạt cộng đồng
- Khu thương mại dịch vụ
- Công viên cây xanh
- Đường dạo bộ
- Khu đỗ xe công cộng
- Trung tâm an ninh

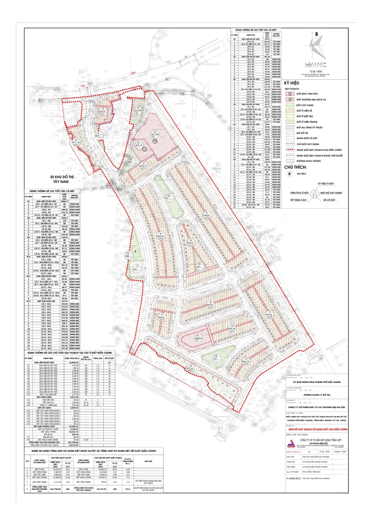
Mặt bằng tổng thể Mỹ Độ Vista City TP Bắc Giang
Khu Dân Cư mới Mỹ Độ – Thành Phố Bắc Giang có quy mô ~10ha được quy hoạch bài bản, hiện đại với mật độ xây dựng chỉ hơn 37% gồm 381 lô đất nền đáp ứng tối đa nhu cầu đa dạng của khách hàng.
- Loại hình phát triển: nhà phố liền kề, biệt thự
- Liền kề, Đất nền: Phân khu N1- N11: 70m2 đến 150m2/nền
- Biệt thự: (17 lô): 160m2 – 260m2
- Mặt tiền: 5m- 5,5m – 6m- 7,5m -10 -12m
- Hướng Đất chủ đạo: Đông Bắc, Tây Nam ( số ít ĐN và TB )
- Mặt cắt đường: 13,5m (vỉa hè 3m x 2), lòng đường 7 m
- Mặt cắt đường: 16 m (vỉa hè 4,5m x 2), lòng đường 7 m
- Mặt cắt đường: 21 m (vỉa hè 6,0m x 2), lòng đường 9 m


Thiết kế căn hộ Mỹ Độ Vista City TP Bắc Giang
Sơ đồ phân lô Khu đô thị Mỹ Độ Vista City
Khu đô thị Mỹ Độ Vista City quy mô 9,5ha được phân thành 2 phân khu với tên gọi Orien Vista và Western Vista. Đường giữa 2 phân khu rộng 16 m (vỉa hè 4,5m x 2), lòng đường 7 m nối dài từ Đường chính 21m khu shophouse Hoa Ban chạy qua hồ điều hòa công viên 3ha đến Đường Thân Nhân Trung.
Đường nội bộ khu đô thị có cắt đường: 13,5m (vỉa hè 3m x 2), lòng đường 7 m, hai bên trồng Bàng Đài Loan và hoa đảm bảo quanh năm lúc nào cũng đẹp và rợp bóng mát.
Tiểu khu Orien Vista gồm các Block N1 đến N6, ranh giới là đường Thân Nhân Trung- Mỹ Độ và đường 16m.
Tiểu khu Western Vista gồm các Block N7 đến N11, ranh giới là đường 21m Cầu Á Lữ nối ra đường lớn đi Khu đô thị Việt Hàn. Ngay sát tiểu khu là vị trí dự án 200ha của tập đoàn Vingroup.
Thanh toán theo tiến độ Mỹ Độ Vista City TP Bắc Giang
Giá bán đất nền liền kề và shophouse ở dự án Khu đô thị Mỹ Độ Vista City
Anh/chị quan tâm xin vui lòng liên hệ: 0974696767 để được cập nhật.
Tiến độ thanh toán dự kiến: trải dài 6 đợt thuận lợi cho nhà đầu tư
- Đặt cọc 100 triệu đồng/lô đất
- Đợt 1: Thanh toán 50% và phí dịch vụ khi kí HĐDV
- Đợt 2: Thanh toán 10% giá trị lô đất trước ngày 30/09/2021
- Đợt 3: Thanh toán 10% giá trị lô đất trước ngày 31/10/2021
- Đợt 4: Thanh toán 10% giá trị lô đất trước ngày 30/11/2021
- Đợt 5: Thanh toán 15% giá trị lô đất trước ngày 31/12/2021
- Đợt 6: Thanh toán 5% giá trị lô đất khi nhận thông báo làm GCN QSDĐ
Chính sách bán hàng Mỹ Độ Vista City TP Bắc Giang
Tiến độ triển khai KĐT Mỹ Độ Vista City Bắc Giang
Các mốc thời gian hoàn thành dự kiến:
15/4: Thi công hoàn thiện đường vào dự án
31/5: Cơ bản hoàn thiện xong hạ tầng giai đoạn 1 phân khu Orien Vista
30/7: Hoàn thiện xong hạ tầng giai đoạn 2 phân khu Western Vista
Tháng 10/2021: ra sổ đỏ từng lô
Tiến độ xây dựng Mỹ Độ Vista City tháng 8/2021



Tham khảo thêm: Dự án Feliz Homes | Apec Kim Bôi



