Dự án HP Naia City Hải Yên Móng Cái
HP Naia City Móng Cái là một trong những dự án bất động sản nổi bật nhất năm 2021 được mở bán tại thành phố Móng Cái Quảng Ninh. Dự án được đầu tư và xây dựng bởi Liên doanh Tổng công ty CP Xuất nhập khẩu và Xây dựng Việt Nam (Vinaconex) – Công ty CP Thành Đạt tại Km4 phường Hải Yên, Móng Cái.
Tổng quan dự án HP Naia City Móng Cái
- Tên dự án: HP Naia City Móng Cái
- Chủ đầu tư: Vinaconex – Hải Phát
- Vị trí: Phường Hải Yên, thành phố Móng Cái, tỉnh Quảng Ninh
- Quy mô đầu tư: 438.804 m2
- Loại hình: Liền kề, Biệt thự, Chung cư,
- Tổng mức đầu tư: Khoảng 1.154 tỷ đồng
- Thời gian mở bán: Quý IV/2021
- Thời gian bàn giao: Dự kiến năm 2023

Vị trí dự án HP Naia City Móng Cái
HP Naia City Móng Cái Quảng Ninh tọa lạc tại phường Hải Yên
- Phía Đông giáp cảng ICD Móng Cái.
- Phía Tây giáp quốc lộ 18
- Phía Bắc giáp Hồ Đoan Tính
- Phía Nam giáp Công Ty Thaco Trường Hải
Từ vị trí dự án dễ dàng di chuyển tới những địa điểm khác trong TP Móng Cái
- 5 phút di chuyển vào trung tâm thành phố Móng Cái
- 8 phút di chuyển tới chợ trung tâm Móng Cái
- 10 phút di chuyển tới cửa khẩu quốc tế Móng Cái
- 30 phút di chuyển tới bãi biển Trà Cổ, Mũi Sa Vĩ

Tiện ích dự án HP Naia City Móng Cái
Chủ đầu tư Vinaconex rất chú trọng đến các tiện ích phục vụ cư dân sinh sống bên trong khu đô thị như
- Hồ điều hòa
- Công viên cây xanh
- Trung tâm thương mại hiện đại
- Hệ thống các phòng tập gym, nhà hàng
- Hệ thống trường học
- Các nhà sinh hoạt cộng đồng
Ngoài ra, từ vị trí của dự án, cư dân trong khu đô thị này dễ dàng di chuyển và tiếp cận những tiện ích, địa điểm bên trong thành phố như : Chợ trung tâm Móng Cái, Cửa khẩu Móng Cái, Bãi tắm Trà Cổ, những khu vui chơi, khu dịch vụ..
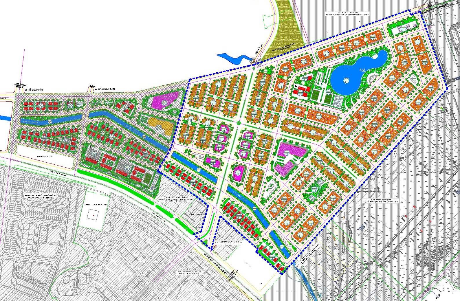
Mặt bằng tổng thể HP Naia City Móng Cái
Quy mô đầu tư: 438.804 m2
- Đất ở: 105.727,5 m2 gồm: 375 căn liên kề, 372 căn shophouse, 35 căn biệt thự
- Đất TMDV: 21.936,3 m2 với mật độ xây dựng 50%, chiều cao tầng từ 11-17 tầng
- Đất giao thông, hạ tầng kỹ thuật, đất khác: 311.141,2 m2
Dự án đất nền Vinaconex Móng Cái bao gồm các sẩn phẩm:
- 375 căn liền kề
- 372 căn shophouse
- 35 căn biệt thự đơn lập

Thiết kế căn hộ HP Naia City Móng Cái
Mẫu thiết kế biệt thự Vinaconex

Mẫu thiết kế liền kề Vinaconex

Thanh toán theo tiến độ HP Naia City Móng Cái
- Giá bán đất nền HP Naia City Móng Cái: Từ 28 triệu/m2
- Giá bán Liền kề HP Naia City Móng Cái: Đang cập nhật…
- Giá bán biệt thự HP Naia City Móng Cái: Đang cập nhật…
- Giá bán shophouse HP Naia City Móng Cái: Đang cập nhật…
Chính sách bán hàng HP Naia City Móng Cái
06 lý do quý nhà đầu tư không nên bỏ lỡ HP Naia City Móng Cái:
- Đầu tư đón sóng thông cao tốc Hà Nội – Móng Cái vào tháng 4/2022 rút ngắn thời gian di chuyển Hà Nội – Móng Cái còn 3,5 giờ.
- Móng Cái là khu kinh tế cửa khẩu số 1 Việt Nam, rất nhiều chủ đầu tư lớn đã về đây đầu tư như: Vingroup, Sungroup, FLC…
- Đất nền không bắt buộc phải xây, sổ đỏ từng căn sở hữu lâu dài.
- Vị trí đắc địa mặt đường quốc lộ 18, cạnh cảng cạn ICD Thành Đạt – cảng luân chuyển hàng hóa lớn nhất miền Bắc. Tính thương mại rất cao khi cửa khẩu Việt Trung được thông quan trở lại.
- Khu đô thị có thiết kế cảnh quan, tiện ích đồng bộ hàng đầu tại Móng Cái.
- Vinaconex là chủ đầu tư lớn với hàng loạt dự án lớn trên thị trường BĐS Việt Nam như: Khu đô thị mới Trung Hòa – Nhân Chính, Khu Đô thị mới Bắc An Khánh – Splendora (Hà Nội), Khu phức hợp nghỉ dưỡng biệt thự biển cao cấp, bến du thuyền, casino và công viên giải trí Cát Bà Amatina (Đảo Cát Bà, Hải Phòng)…
