
Dự án Green Dragon City Cẩm Phả Quảng Ninh
Thành phố Cẩm Phả, tỉnh Quảng Ninh chính là 1 trong những vùng đô thị có tốc độ phát triển về kinh tế – xã hội vượt trội. Các dự án phát triển cơ sở hạ tầng kĩ thuật, giao thông đang được triển khai cực kỳ mạnh mẽ như: dự án Đường bao biển Hạ Long –Cẩm Phả, tuyến đường kết nối Quốc lộ 18 với đường bao biển qua khu suối nước khoáng nóng Quang Hanh, dự án của các Tập đoàn lớn như Bimgroup, FLCgroup, Sungroup, Vingroup…nâng đỡ sự phát triển thị trường bất động sản Cẩm Phả mà đặc biệt dự án Green Dragon City Cẩm Phả cũng góp phần vào sự phát triển đó.
Hotline: 0773223002
Tổng quan dự án Green Dragon City Cẩm Phả Quảng Ninh
Khu đô thị Green Dragon City Cẩm Phả có bờ biển trải dài trên cả 3 phường Cẩm Trung – Cẩm Thành – Cẩm Bình thuộc thành phố Cẩm Phả. Đây là dự án lấn biển nằm liền kề ngay cao tốc Hạ Long – Cẩm Phả, kế bên Khu du lịch Bến Do. Chính vì vậy có thể nói rằng “Green Dragon City là dự án đẹp nhất và tiềm năng nhất tại Thành phố Cẩm Phả thời điểm hiện tại nói riêng và T. Quảng Ninh nói chung”.
Hãy cũng thongtinbatdongsan.net tìm hiểu thông tin tổng quan dự án như sau:
- Tên dự án: Khu đô thị Du lịch dịch vụ Bái Tử Long
- Tên thương mại: Green Dragon Cẩm Phả.
- Chủ đầu tư: CT CP Đầu Tư Phát Triển Công Nghiệp TTP.
- Vị trí xây dựng dự án: Địa phận 3 phường: Phường Cẩm Trung, Cẩm Thành, Cẩm Bình, TP. Cẩm Phả – Quảng Ninh.
- Tổng diện tích dự án: 99 ha
- Giai đoạn 1: 39,33 ha.
- Đơn vị Tư vấn thiết kế: KUME SEKKEI – Công ty tư vấn thiết kế, kiến trúc, quy hoạch hàng đầu Nhật Bản.
- Quy hoạch xây dựng :
- Đất ở: 39,4ha
- Đất công trình công cộng: 1,034ha
- Đất trường học: 1,01ha
- Đất công trình TM-DV: 8,5ha
- Đất cây xanh, quảng trường, mặt nước 11,6ha
- Đất giao thông: 37ha
- Quy mô dự án gồm 2,446 lô trong đó:
- Biệt thự: 230 lô.
- Liền kề: 1,579 lô.
- Shophouse: 647 lô.
- Hình thức sở hữu và pháp lý sạch: Giấy chứng nhận quyền sử dụng đất và tài sản gắn liền với đất – thời hạn: Lâu dài.
Vị trí dự án Green Dragon City Cẩm Phả Quảng Ninh
Dự án Green Dragon City nằm dọc theo bờ biển Vịnh Bái Tử Long thuộc địa phận 3 Phường Cẩm Trung, Cẩm Thành, Cẩm Bình, TP. Cẩm Phả, tỉnh Quảng Ninh. Đây là vị trí tiềm năng lớn trong kế hoạch xây dựng khu dịch vụ du lịch dọc bờ biển vịnh Bái Tử Long của Quảng Ninh. Nơi khai thác tiềm năng có một không hai tại vùng Vịnh đẹp nhất Thế Giới là vịnh Bái Tử Long và vịnh Hạ Long.
- Phía Đông là khu dân cư Đô thị gần cảng Vũng Đục.
- Phía Tây là khu đất giai đoạn 2 của dự án Green Dragon Cẩm Phả.
- Phía Nam là Vịnh Bái Tử Long.
- Phía Bắc giáp khu dân cư (lô N6+N7) của Công ty CP Tập Đoàn INDEVCO, khu dân cư (lô N5) của Công ty CP xây dựng và sản xuất, bia, rượu, khu dân cư (lô N4) của Công ty TNHH Thương Mại Bái Tử Long.
Một trong những khác biệt nổi bật của Dự án Green Dragon Cẩm Phả so với các dự án xung quanh chính là vị trí Mặt tiền hướng biển. Với vị trí đắc địa này chính là điểm mạnh cho tiềm năng tăng giá trong tương lai của đất nền dự án này
Vị trí kết nối của dự án Dragon City Cẩm Phả
- Dự án TTP Cẩm Phả liền kề với Vincom Plaza Cẩm Phả
- Cách dự án Golden Mark 100m
- Cách đường bao biển Hạ Long Cẩm Phả 1km
- Cách quốc lộ 18 là 100m
- Mặt biển Vịnh Bái Tử Long
- Trường THPT Cẩm Phả 1km
- Chợ Cẩm Thủy 1,5km
- Sân vận động Cẩm Phả 0,8km
- Bệnh viện đa khoa Cẩm Phả 1,5km
- Sân bay quốc tế Vân Đồn 21km
Tiện ích dự án Green Dragon City Cẩm Phả Quảng Ninh
Danh mục Hệ thống tiện ích Dự án Green Dragon TTP Cẩm Phả:
- Bãi đỗ xe;
- Phố đi bộ;
- BBQ zone;
- Khu thể thao ngoài trời;
- Vườn cảnh quan;
- Bến du thuyền và vườn Ánh Sáng;
- Bến du thuyền;
- Cầu cảng / Phố bia;
- Đường bao biển;
- Khu vui chơi trên cát;
- Tắm khoáng nóng tại nhà;
- Bãi tắm nhân tạo dài 1km;
TTP Cẩm Phả đem đến cho chủ nhân thiên niên kì vĩ ngay trong tầm mắt. Tuy nhiên, quý cư dân vẫn được đảm bảo không gian riêng tư. Tất cả được bao bọc trong sự sang trọng với hệ thống an ninh cao cấp của Dự án Green Dragon Cẩm Phả.
PHỐI CẢNH TIỆN ÍCH CHÍNH GREEN DRAGON TTP CẨM PHẢ
Khu vui chơi trên bãi biển

Bến du thuyền đẳng cấp
Cảnh quan vườn Nhật tinh tế
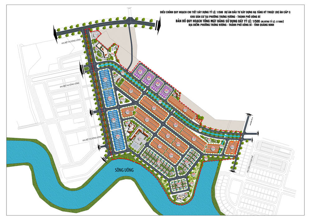
Mặt bằng tổng thể Green Dragon City Cẩm Phả Quảng Ninh
TTP Cẩm Phả không chỉ hướng đến các nhà đầu tư mà cả người tiêu dùng. Thiết kế hạ tầng với sự ưu tiên lớn cho giao thông và không gian công cộng. Có thể thấy, TTP Cẩm Phả ưu thế về mật độ phân lô so với các dự án cận kề. Ngoài ra, Đất nền TTP Cẩm Phả còn được hưởng lợi từ không gian tiếp giáp Vịnh Bái Tử Long.
Mặt bằng các Phân khu Dự án Green Dragon Cẩm Phả
PHÂN KHU DỰ ÁN GREEN DRAGON TTP CẨM PHẢ
Phân khu 1: Green Habour City – Giai đoạn I Dự án Green Dragon City
Đây là giai đoạn đầu của Dự án. Khu Green Habour City có 610 lô shophouse, 122 lô liền kề và 141 lô biệt thự hướng biển.
Phân khu 2: Green Central Park
Được lấy cảm hứng từ một miền thiên nhiên lành xanh mát ngay giữa lòng đô thị, sở hữu 17,7ha diện tích cây xanh mặt nước. Nằm cạnh hồ điều hòa rộng lớn của toàn dự án, phân khu Green Central Park được xây dựng để thành phố công viên, mang đến một cuộc sống xanh tươi, trọn vẹn và đủ đầy cho cư dân. Hoà vào phố phường sôi động là thiên đường xanh trong của nước, của hoa cỏ bốn mùa.
Tại đây, cư dân sẽ được tận hưởng không gian sống trong lành và thịnh vượng mỗi ngày, nơi vườn trong phố, phố giữa công viên.
Phân khu 3: Green Bayview Resort
Đây sẽ là khu nghỉ dưỡng đẳng cấp, hứa hẹn trở thành một thiên đường du lịch mới của thành phố Cẩm Phả, thụ hưởng những giây phút an yên cùng dịch vụ thượng lưu bên bờ vịnh xanh.
Tất cả các sản phẩm của dự án Green Dragon City Cẩm Phả đều được thiết kế với không gian mở. Mọi gian phòng được thiết kế tối ưu ánh sáng và khí trời từ Vịnh Bái Tử Long.
NHÀ XÂY SẴN DỰ ÁN GREEN DRAGON TTP CẨM PHẢ
Biệt thự, Liền kề, Shophouse Dự án Green Dragon Cẩm Phả
Sản phẩm của dự án TTP Cẩm Phả đều được xây dựng tại trục đường chính. Gói bàn giao xây thô theo thiết kế và hoàn thiện mặt ngoài để đảm bảo tính đồng bộ toàn khu. Sở hữu bìa đỏ Dự án Green Dragon Cẩm Phả
- 25 căn liền kề, diện tích 100m2, xây thô 5 tầng, 5x20m.
- 191 căn shophouse diện tích 97m2, xây thô 5 tầng, 4,8×20,2m.
- 70 căn biệt thự, xây thô 3,5 tầng.
Đất nền Phân lô là sản phẩm chính tại dự án.
Sở hữu sổ đỏ đất nền, khách hàng tự xây dựng theo thiết kế giới hạn chiều cao. Shophouse tối đa 5 tầng, liền kề và biệt thự tối đa 3,5 tầng.
- 442 lô shophouse.
- 383 lô liền kề.
- 71 lô biệt thự.
Thiết kế căn hộ Green Dragon City Cẩm Phả Quảng Ninh
Đang cập nhật…
Thanh toán theo tiến độ Green Dragon City Cẩm Phả Quảng Ninh
- Đặt cọc 100 triệu với liền kề và 200 triệu với shophouse
- 7 Ngày sau đóng 20% ( đã bao gồm tiền cọc ) kí HĐMB
- 30 ngày sau : Đóng 25%
- 60 ngày sau : Đóng 10%
- 90 ngày sau : Đóng 10%
- 120 ngày sau : Đóng 10%
- 150 ngày sau : Đóng 10%
- 180 ngày sau : Đóng 10%
- Sau khi ra sổ : Đóng nốt 5%
Chính sách bán hàng Green Dragon City Cẩm Phả Quảng Ninh
Giá bán đất nền : Từ 28 triệu/m2 – 31 triệu/m2.
Giá bán liền kề : Hiện tại dự án chưa được mở bán nên chưa có giá chính thức.
Giá bán biệt thự : Hiện tại dự án chưa được mở bán nên chưa có giá chính thức.
Giá bán Shophouse : Hiện tại dự án chưa được mở bán nên chưa có giá bán chính thức
