Dự án chung cư Đức Giang Residence Long Biên
Tổng quan dự án Chung cư Đức Giang Residence Long Biên
- Tên dự án: Đức Giang Residence
- Vị trí dự án: Số 18/44 đường Đức Giang, P. Thượng Thanh, Q. Long Biên, TP Hà Nội.
- Chủ đầu tư: Công ty Cổ phần Bột giặt và hóa chất Đức Giang.
- Đơn vị thiết kế: Công ty Cổ phần kiến trúc Lập Phương – CUBIC
- Tổng diện tích đất: 54.312m2
- Diện tích xây dựng: 19.592m2
- Diện tích sàn xây dựng: 174.121m2
- Diện tích công trình công cộng: 4.613m2
- Diện tích Trường PTTH: 4.003m2
- Diện tích đất ở N02 (53 căn liền kề): 5.700m2
- Diện tích đất ở N03 (3 tòa chung cư)
- Diện tích lô đất: 17.048m2
- Diện tích xây dựng: 9.472m2
- Diện tích xây dựng khối đế: 9.472m2
- Diện tích xây dựng khối tháp: 5.088m2
- Mật độ xây dựng khối đế: 55,6%
- Mật độ xây dựng khối tháp: 29.7%
- Diện tích sàn xây dựng: 131.218m2
- Quy mô: 23 tầng nổi, 02 tầng hầm, 03 tầng đế
- Diện tích đất giao thông: 10.119m2
- Diện tích đất trả lại thành phố: 1.585m2
- Mật độ xây dựng toàn dự án: 36.1%
- Quy mô dân số: 2.263 người
- Hình thức sở hữu: Sổ hồng vĩnh viễn

Vị trí dự án Chung cư Đức Giang Residence Long Biên
Dự án Đức Giang Residence nằm ở số 18/44 đường Đức Giang, phường Thượng Thanh, Quận Long Biên, TP Hà Nội … Nằm cách cây cầu Đông Trù chỉ 10p đi bộ. Dự án chung cư hóa chất Đức Giang có lợi thế lớn về không gian sống trong lành, mật độ dân cư thấp, không ồn ào như trong nội khu của thành phố. Từ căn hộ của chung cư có thể view thấy toàn cảnh 4 mặt mà không hề bị chắn.

Tiện ích dự án Chung cư Đức Giang Residence Long Biên
Chung cư Đức Giang Residence Long Biên được xây dựng và quy hoạch rõ ràng tại 1 vị trí đắc địa thừa hưởng rất nhiều những lợi ích từ khí hậu, tầm nhìn cũng như giao thông để có thể tạo nên 1 môi trường sống tuyệt vời cho khách hàng tại đây.
Nói đến tiện ích sống tại Chung cư Đức Giang Residence của Chủ đầu tư Công ty Cổ phần Bột giặt và Hóa chất Đức Giang thì khách hàng có thể ngắm được toàn bộ quận Long Biên cũng như dòng sông Đuống ngay tại căn hộ của mình. Tầm view thoáng nhìn rộng không bị che chắn là lợi thế của chung cư Đức Giang khi mà những năm gần đây hầu hết các chung cư khu vực nội đô chật chội đã không còn quan tâm nhiều đến hướng view nữa.

Không gian xung quanh dự án chung cư hóa chất Đức Giang được chủ đầu tư chú trọng với việc bố trí cây xanh cảnh quan. khuôn viên đi bộ, quảng trường vui chơi dành cho trẻ em. Hơn thế nữa việc xây dựng trường học, trung tâm thương mại mua sắm chắc chắn sẽ đáp ứng được mọi nhu cầu thiết yếu về sinh hoạt cũng như vui chơi giải trí của người dân nơi đây.
Chung cư Đức Giang Residence Thượng Thanh được bố trí các tiện ích trong trung tâm thương mại tầng 4 được bố trí Gym, spa, bể bơi nước nóng, dịch vụ mua sắm, sân vườn tiểu cảnh. Ngoài ra tầng 1 là khu tiền sảnh, nhà trẻ, sân vườn diện tích lớn cũng như khu sinh hoạt cộng đồng để giúp người dân có thể gắn kết và chia sẻ với nhau nhiều hơn.

Mặt bằng tổng thể Chung cư Đức Giang Residence Long Biên
Với những thiết kế hiện đại, áp dụng các tiêu chuẩn kiểu mẫu cho những căn hộ tại Chung cư Đức Giang Residence Thượng Thanh người mua nhà có thể hoàn toàn yên tâm về không gian sống, việc vận dụng các yếu tố phong thuỷ vào trong từng thiết kế với chủ đạo các căn hộ đều lấy cảm hừng “Chạm tay vào Nắng và Gió” kết hợp tinh tế với thiên nhiên, mang thiên nhiên vào từng căn hộ nhưng vẫn giữ được sự sang trọng và đẳng cấp.


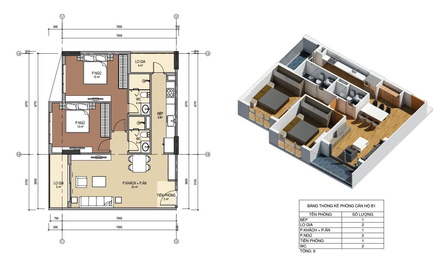
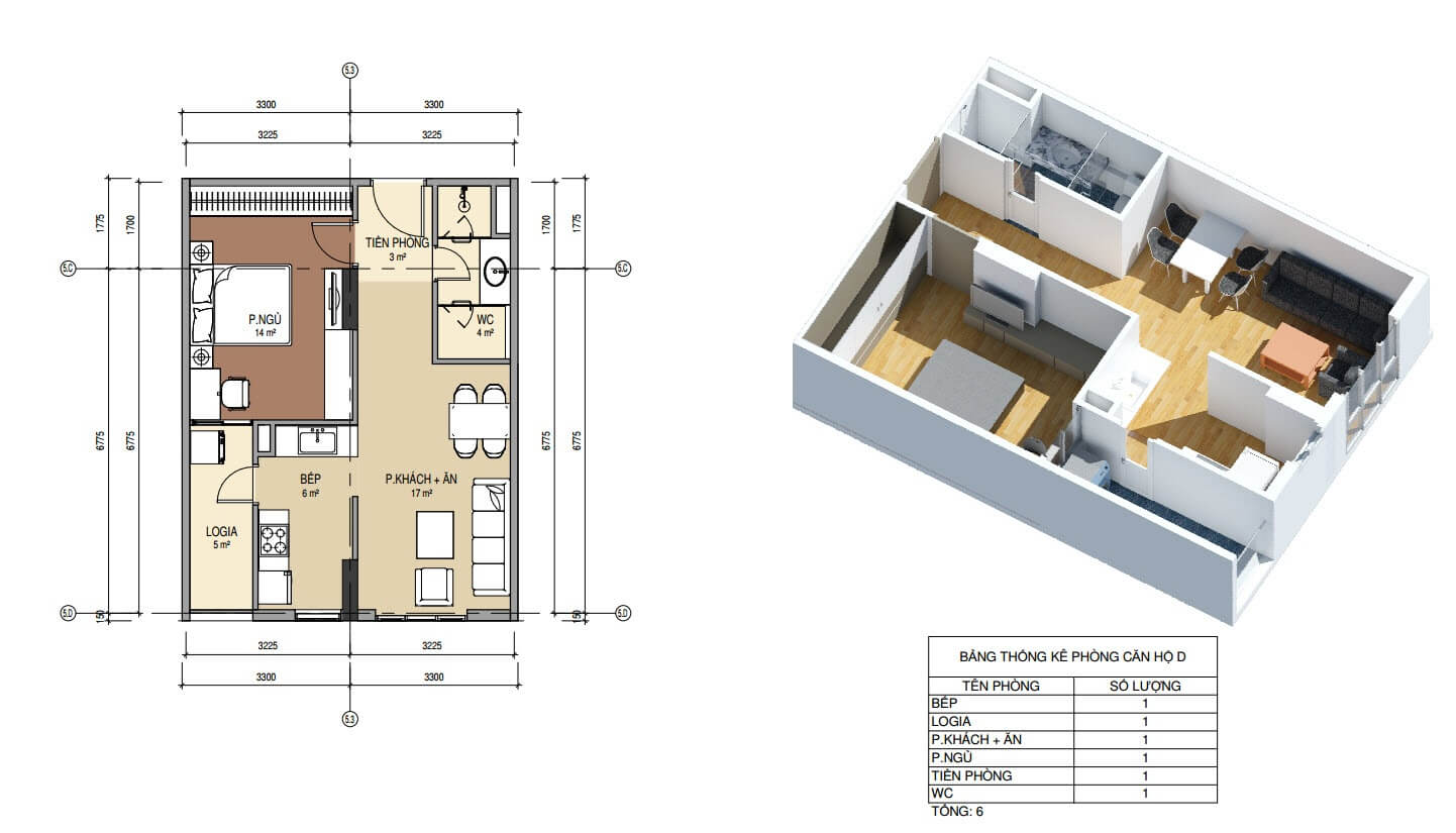
Thiết kế căn hộ Chung cư Đức Giang Residence Long Biên
Sản phẩm thương mại của dự án bao gồm 53 lô đất nền liền kề có diện tích từ 100 m2 – 135 m2 và 831 căn hộ chung cư. Mỗi căn hộ có diện tích từ 58,2 m2 – 125 m2. được thiết kế có từ 2 – 4 phòng ngủ.

Thiết kế căn hộ loại A: 125 m2

Thiết kế căn hộ loại B: 114 m2

Thiết kế căn hộ loại B2: 114 m2

Thiết kế căn hộ loại C: 79 m2

Thiết kế căn hộ loại B: 56 m2
Thanh toán theo tiến độ Chung cư Đức Giang Residence Long Biên
Cập nhật
Chính sách bán hàng Chung cư Đức Giang Residence Long Biên
Cập nhật
HOTLINE: 0974696767

Dự án cùng khu vực
Dự án chung cư 109 Tố Hữu Văn Khê Hà Đông
Chung cư Nam Định Tower 91 Điện Biên